Ruimtelijk maken
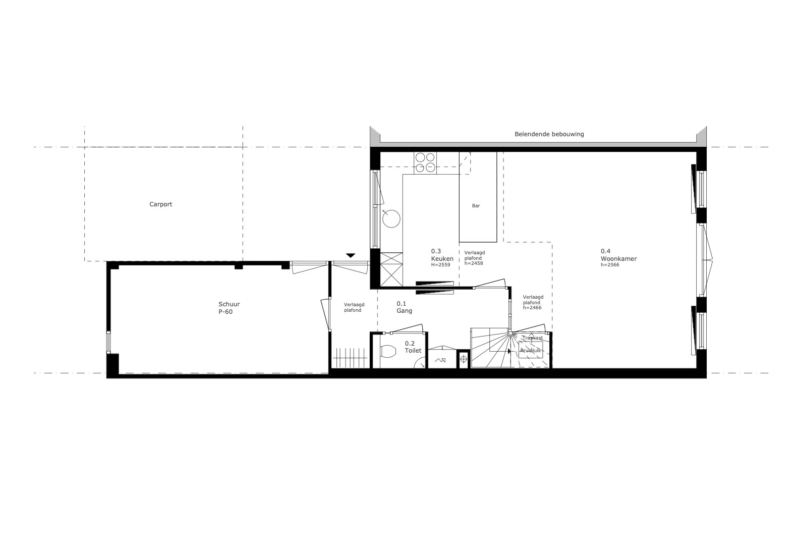
De bewoners van deze hoekwoning wilden hun woning verduurzamen, maar ook seniorproof maken. De oude kast wilden ze graag terug in het ontwerp en een schiereiland was een wens. Door het zitgedeelte met de eethoek te wisselen ontstaat er een fijne zithoek en meer ruimtelijkheid. Dit wordt extra benadrukt door het maatwerk televisiemeubel die aan de wand geplaatst is. Al met al is het een heerlijke woning geworden. Binnenkort de foto’s!



