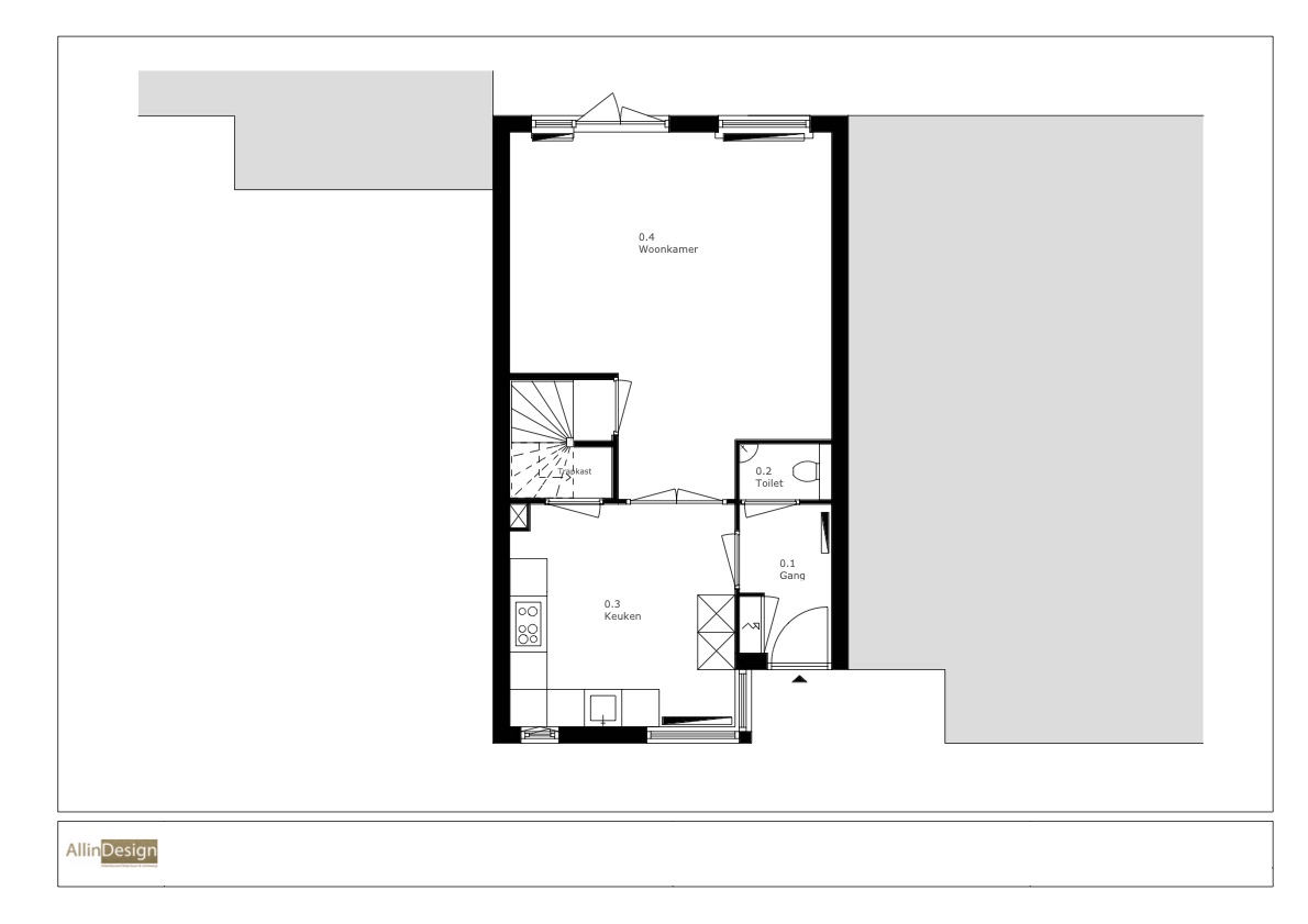
Binnenkort begint de verbouwing van deze hoekwoning in Leusden!
Privacy en cookies: Deze site maakt gebruik van cookies. Door verder te gaan op deze site, ga je akkoord met het gebruik hiervan. Voor meer informatie, onder andere over cookiebeheer, bekijk je: Cookiebeleid.